
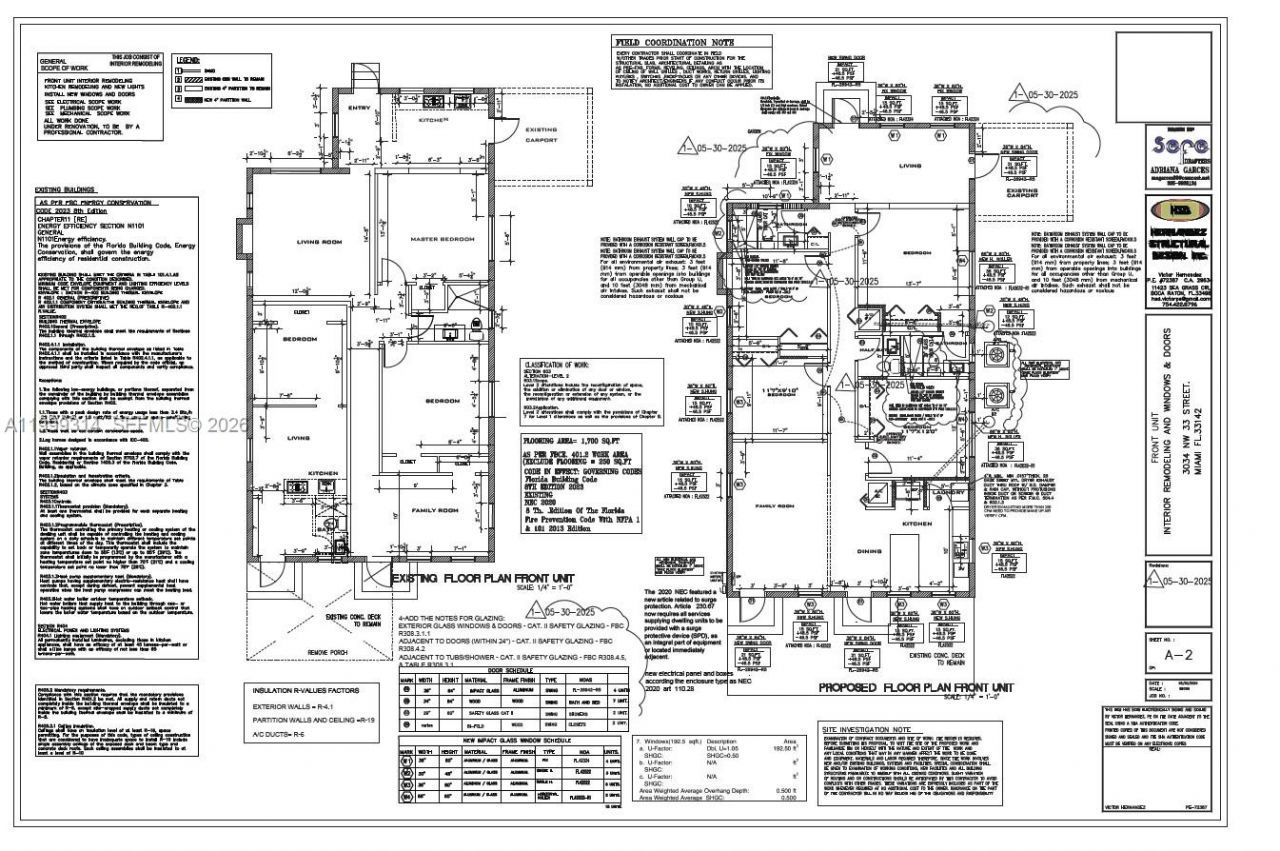
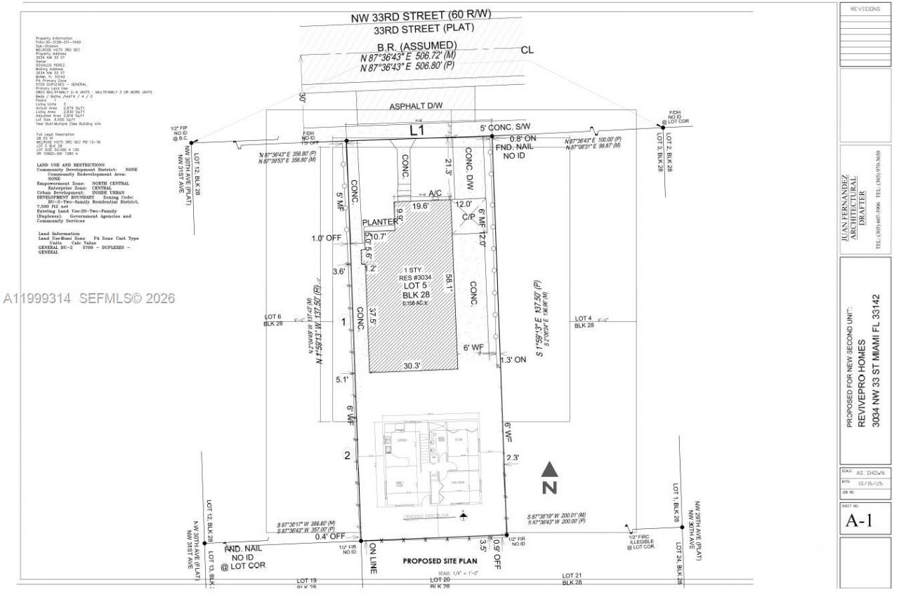
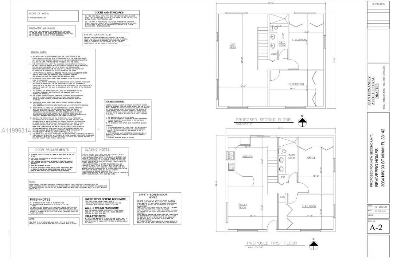
Exceptional redevelopment opportunity in the rapidly growing Allapattah submarket. This duplex-zoned property is being repositioned into a modern, income-producing residential asset with approved plans expected by the end of April, offering buyers a near shovel-ready project.The redevelopment features a thoughtfully designed front and rear structure configuration totaling approximately 3,800 square feet of living area. The front residence is planned as a spacious 4-bedroom, 2-1/2 bath unit, whil...Exceptional redevelopment opportunity in the rapidly growing Allapattah submarket. This duplex-zoned property is being repositioned into a modern, income-producing residential asset with approved plans expected by the end of April, offering buyers a near shovel-ready project.The redevelopment features a thoughtfully designed front and rear structure configuration totaling approximately 3,800 square feet of living area. The front residence is planned as a spacious 4-bedroom, 2-1/2 bath unit, while the rear structure will be a newly constructed 3-bedroom, 2-bath unit, creating strong rental flexibility and long-term upside.The existing structure is fully gutted, and the project is designed to deliver a near new construction product, with all new systems, layouts, and finishes. Ideal for investors, builders, or end-users looking to create value in a high-demand rental corridor.Centrally located with easy access to Wynwood, Downtown Miami, Miami International Airport, and major transportation corridors. Strong rental demand and continued neighborhood growth make this a compelling opportunity.
View MoreCourtesy of
Agency Name: List-A-House Realty, LLC
Agency Phone: 754-799-7545
Agent Name: James Migues
Presented by
Agent Name: Nancy Muro
Agent Phone: 305.793.4387
Agency Title: The Keyes Company
Request Info
Send an email with a link to
3034 NW 33rd St, Miami, FL 33142.
Email 3034 NW 33rd St, Miami, FL 33142
Thank you for your inquiry! As a thank you, we have a Special Mortgage Offer for You.
We would like to provide you a free, no-obligation, home loan pre-approval review.