
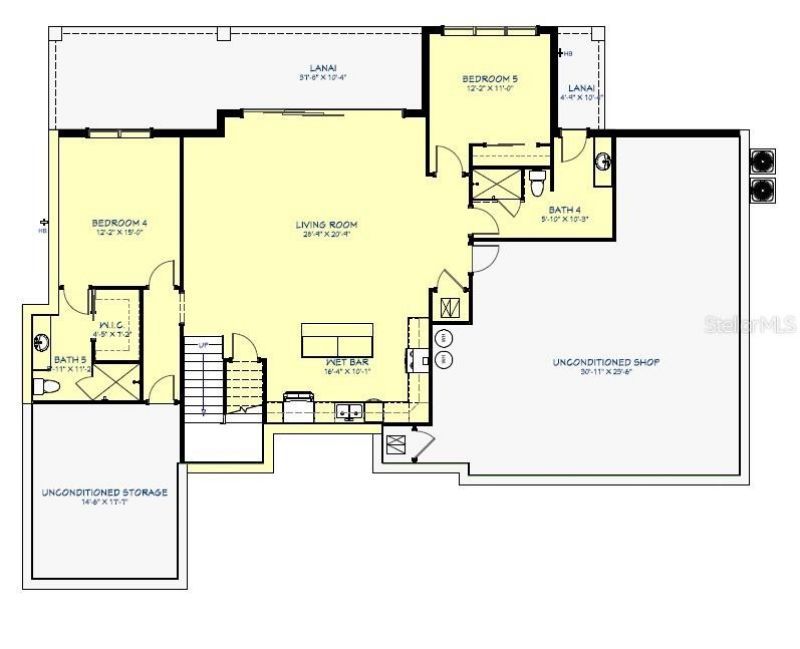
Pre-Construction. To be built. Lakefront Home! Presenting; The Hampton by Trilogy Homes, an architecturally refined lakefront residence designed for elevated everyday living within an exclusive gated luxury home community. Perfectly positioned on Lot 9 a premier homesite offering approximately 82 feet of direct lake frontage, this property enjoys serene water views, enhanced privacy, and a rare connection to natural beauty-creating an extraordinary setting for a custom home of distinction.Though...Pre-Construction. To be built. Lakefront Home! Presenting; The Hampton by Trilogy Homes, an architecturally refined lakefront residence designed for elevated everyday living within an exclusive gated luxury home community. Perfectly positioned on Lot 9 a premier homesite offering approximately 82 feet of direct lake frontage, this property enjoys serene water views, enhanced privacy, and a rare connection to natural beauty-creating an extraordinary setting for a custom home of distinction.Thoughtfully composed and spanning 4,450 sq ft of conditioned living space (over 7,100 sq ft total), The Hampton blends architectural presence with warmth, comfort, and intentional design. Layered natural light, balanced proportions, and seamless indoor-outdoor transitions create a residence that feels both elegant and effortless. The main floor features the primary suite, a grand great room, designer kitchen with an expansive island and walk-in pantry, dedicated dining room, two additional bedrooms, a full bath, powder room, laundry room, and an oversized garage. Covered and uncovered balcony spaces extend the living experience outdoors, capturing elevated lake views and providing exceptional space for relaxation or entertainment.The lakefront lower level includes two additional bedrooms and a full bath, a powder bath, and a spacious secondary living room with a built-in wet bar-ideal for gatherings, hosting guests, or multigenerational living. Multiple lanai areas provide direct access to the lakeside environment and future poolside living opportunities. A substantial unairconditioned shop and expansive storage areas add meaningful flexibility for hobbies, recreation, or specialty storage needs. Designed with adaptability in mind, Trilogy Homes offers opportunities to personalize The Hampton while maintaining its timeless architectural integrity.Situated within Mirror Lake, an intimate gated community of just 21 homesites, residents enjoy an uncommon pairing of lakefront serenity and wide-open golf course vistas from the adjacent Clermont National Golf Course. The setting offers privacy, exclusivity, and a lifestyle defined by natural beauty and homes with architectural distinction. This exceptional lot and custom designed home present a rare opportunity to build a luxury residence in one of Central Florida's most captivating lakefront enclaves, offering privacy, exclusivity, and a thoughtful architectural vision. More than a place to live, Mirror Lake is a retreat for those who appreciate distinction, natural beauty, and a lifestyle designed with intention and differentiation. Close to all things but miles away in Lifestyle, this unique homesite is one of the most captivating sites in Mirror Lake-offering a timeless setting and an extraordinary canvas for your custom home. Call us to reserve this extraordinary lot while you meet with Trilogy Homes to explore this home design further and take next steps to making Mirror Lake your 'Dream Home Come True! There may be additional design fees from the Builder if the offered Home design is materially changed by Buyer.
View MoreCourtesy of
Agency Name: RESOLUTE DEVELOPMENT GROUP, LLC
Agency Contact: 407-217-2277
Agent Name: Edward Durruthy
Presented by
Agent Name: Nancy Muro
Agent Phone: 305.793.4387
Agency Title: The Keyes Company
Request Info
Send an email with a link to
161 Tranquil Mirror Lake Court, Unit Lot 9, Clermont, FL 34711.
Email 161 Tranquil Mirror Lake Court, Unit Lot 9, Clermont, FL 34711
Thank you for your inquiry! As a thank you, we have a Special Mortgage Offer for You.
We would like to provide you a free, no-obligation, home loan pre-approval review.